A-策划前言
2025年经济持续下行,消费者们捂紧钱袋子,理性消费,作为号称「新一线」的制造业城市—东莞,实际也只能算是一个二线城市,地铁仅开通二条,32个镇街分散,各自为中心,对于想在这样一个城市(东莞南城市中心),想开一家日料店,时不时遭受日本核废水、中日政治事件的影响下,如何保证开一家日料店,还能做到不亏损盈利呢?

*施工围档
B-品牌定位
首先是品牌定位,日料寿司是确定的创业餐饮品类,创始团队拥有二十多年的寿司经验,深耕日料多年,曾经也开出百万店,峰回路转,起起伏伏,这次创始团队把目光瞄向:小店模型,把面积锁定在100平方左右,投入可控,风险可控,避开与寿司郎、争鲜、元气、摩打食堂等一线品牌直接竞争。

*板前鮨造
团队决定取消:回转模式,回到:板前模式。让消费者与板前师傅,能够面对面交流与体验,让消费者肉眼可见食物的新鲜与现制;也可以理解是让高高在上的Omakase走下神坛,让曾经少则人均五六百元每位,动辙人均数千的Omakase,回到人均200元-400元/位价位,回到平民阶段,能让大多数中产阶层都能消费得起,但又不至于跌落至人均七八十元的低价回转寿司中去,为了利润,牺牲品质,从而形成恶性的低价竞争。

*人均二百

*板前师傅
日料菜品大概分为:回转、厨房、现握、水产等多个产品区域,我们将产品核心集中在现握与少许厨房上去,这样可以减少后厨人工,一人一岗的模式,使得每家餐厅配备十人左右;预计后厨三人,板前五人,服务员三人,收银一人,没有规模效果,只有控制好人效比,才有利润可言,有利润才有服务。

*用餐场景。
C-菜单设计
菜单的设计,我们分为二类,一类是纸质点单,一类是电子IPad点单,纸质菜单方便客人快速勾选,电子ipad是为了方便客人图文对比快速下单。纸质菜单分为A4大小及A5大小,A4菜单包括:手握类、卷物类、寿司丼、刺身类、手卷类;A5菜单主要是指厨房类,包括:料理、酒水。除此之外空间还设有黑板,推荐当季新品料理,方便客户在用餐时下单。

*板前菜单。

*料理菜单。
D-店铺选址
选址是一门学问,选址定生死。创业团队在经历过社区经营失败后,毅然决然把店铺开在东莞南城的核心商圈:国贸。东莞南城的核心商圈除了「第一国际」就是「国贸」,也只有这样的流量支持才能为餐饮创业者减少一丝丝焦虑,在东莞奇特的消费市场下,一周七天,营业三天。除了星期五、星期六、星期天,节假日外,平时星期一至星期四,基本都是死气沉沉,消费毫无生机,此次,我们团队选择在国贸四楼,与响哇为邻,费大厨为伍,除了元气寿司外,别无它家日料。

*现场制鮨。
E-品牌命名
在品牌命名上,我们以寿司为餐饮品类核心,加上一个繁体的廣字,来源于创始人姓名中一个广字,即:寿司廣,亦如:寿司郎一样,命名简洁、传达高效。

*店内海报。
F-标志设计
标志的设计,我们以中文字体为核心,邀请书法老师泼墨挥毫,中文名为:寿司廣,英文名为:Suhi Hiro,日文名:すし廣,通过不同高低大小,形成不同组合应用不同场景。

*工衣设计。

*湿纸设计。
G-套餐海报
为了解决星期一至星期五,商圈人流量少,生意低迷的情况,我们设计了特价套餐组合,希望能刺激消费,让营业有所改观。

*海报设计。

*单人套餐。

*双人套餐。

*湿纸设计。
H-空间设计
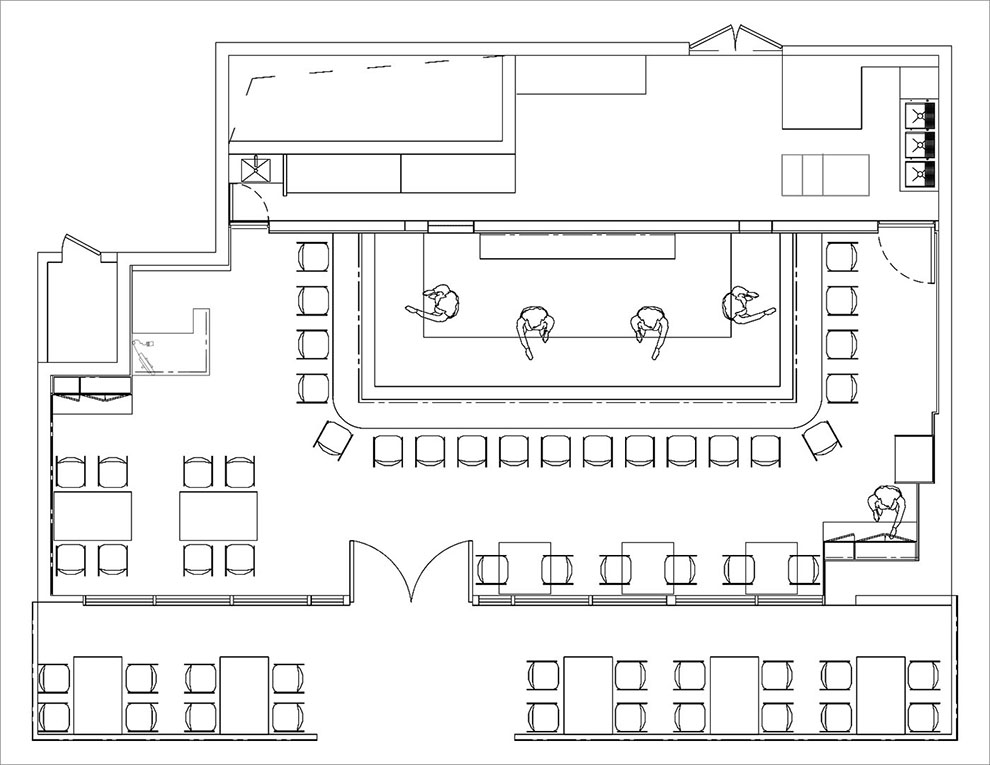
空间的设计,我们以原木风为主要风格,原木给人以温润的质感。板前寿司最大的设计就是吧台的设计,为了保证营业面积的最大化,吧台我们设计了20座位,另外设立了四人位二桌,可拼桌,二人位三桌,室内可以实现34个餐位,外摆四人位五桌,可以实现20个餐位,共54个餐位。

*平面布置。

*店铺门头
门头的设计我们以杜邦纸灯膜木线为主,整个门头玻璃不锈钢框架,干净利落,配合外摆家具、灯箱海报氛围十足。

*吧台效果
吧台的设计,以桧木为质感,二层台面,背景以PU彷石材为主,上方杜邦纸灯膜与木线条,天花呈回字型阶梯状,灯光层次分明,大家绕板前师傅围座一起,体验鱼生带来的快乐。

*收银前台
收银前台,杜邦纸灯膜与木线条相映成趣,中间香槟金不锈钢发光招牌;收银台整体木质结构,氛围灯光映照。

*吧台侧照

*水吧收纳

*卡座区域

*店铺侧照。
I-落地实景
*实景门头
项目的施工,从10月7号开始施工,于11月7号完工,11月15号试营业,历时约一个月有余。从硬装工程、消防机电、软装采购、广告工程,全赖团队的通力协作。软装桌椅,灯饰灯具皆由甲方自行采购,门头因为商场新规限高与客户预算调整,在原有租户门头上得以保留与改造,方有如今效果,实景图还原效果图约85%。
*前厅视角
*前台收银
*可拼桌椅
*吧台视角
*大厅视角
*吧台视角
*用餐餐具
*用餐氛围
*店内环境
*店内环境
*店前广告
*店前等候。
J-营业盛况

*现场火爆

*排队等候

*港台钟爱

*热闹非凡

*轻松自在

*观看制鮨

*友情话聚
现场开业后,持续火爆,排队等位,甲方发来视频。这是一次以用户为导向的价值双赢。此案设计以甲方需求为主导,我方设计跟进,从实际需求出发,平衡各个关系,从前期考察、店铺选址、品牌定位、平面视觉、空间设计、施工落地、菜单设计、物料执行,深度参与其中,深知创业不易,稳钱不易,每个人都有自己的角度与想表达的点,如何做到平衡,需要一种智慧,更需要一份耐心,最终的结果是综合的结果,不是那一方面突出就能胜出得了的,所谓「人作一半,天做一作」,在于此理,剩下交给时间与周期了。
